Żuraw chwytakowy
Model produktu;QZUdźwig: 5-450t
Rozpiętość: 6 m - 31, 5 m
Wysokość podnoszenia: 3m - 60m
Obowiązek pracy: A3-A6
Dostosowana usługa: Zapewnij
Temperatura pracy: -25 do 40 stopni
Opis
Grab Bucket Overhead Crane Wprowadzenie
Suwnice z chwytakiem chwytakowym odnoszą się do suwnic pomostowych, które wykorzystują łyżkę chwytakową jako rozrzutnik. W przygotowaniu surowców może wykonywać operacje takie jak rozładunek, układanie, transport zwrotny, odzyskiwanie i załadunek. Suwnica pomostowa chwytakowa jest szeroko stosowana do podnoszenia ładunków drobnicowych w różnych fabrykach i kopalniach i jest wyposażona w specjalny rozrzutnik, taki jak chwytak do operacji specjalnych.
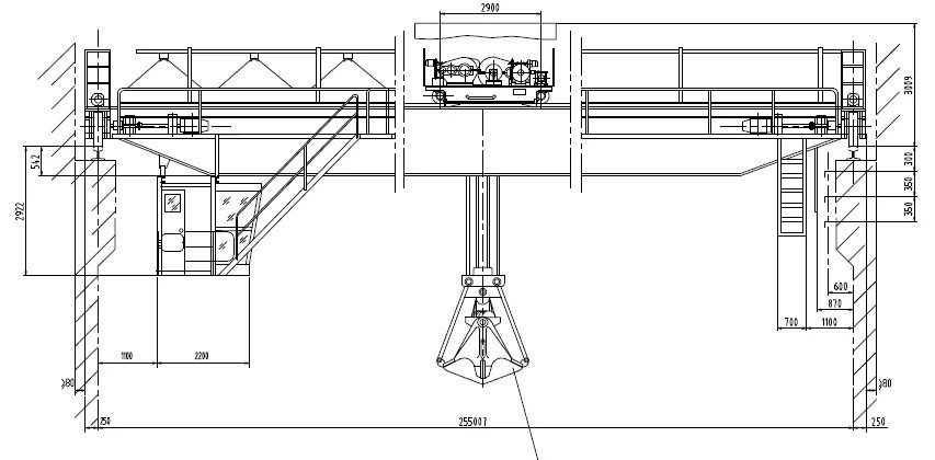
Rysunek suwnicy chwytakowej
Parametry suwnicy chwytakowej
| Pojemność | t | 5 | 10 | 16 | 20 |
| Zakres | m | 10.5-31.5 | 10.5-31.5 | 10.5-31.5 | 10.5-31.5 |
| Wysokość podnoszenia | m | 6-18 | 6-18 | 6-18 | 6-18 |
| Prędkość podnoszenia | m/min | 39.2 | 39.3 | 41.8 | 45.7 |
| Prędkość wózka | m/min | 44.6 | 45.9 | 43.2 | 43.2 |
| Prędkość żurawia | m/min | 93.6 | 112.5 | 98 | 87.3 |
| Obowiązek pracy | A5-A6 | A5-A6 | A5-A6 | A5-A6 | |
| Typ toru | P43 lub QU70 | P43 lub QU70 | QU70 lub 90*90 | QU70 lub 90*90 |
Struktura produktu
■ Układ elektryczny elektrycznego żurawia chwytakowego:
1. Linia styku prowadnicy bezpieczeństwa lub linia styku prowadnicy kątowej;
2. Zasilanie wózka przez kabel płaski;
3. Podróżowanie płynnie i piękna powierzchowność; elektryczny podwójny dźwigar Overhead Clamshell Bridge Crane Grab Bucket do budowy 18 ton
■ Ochrona elektrycznego żurawia chwytakowego:
1. Osłony przeciwdeszczowe na mechanizm podnoszący, skrzynkę silnika i układ napędowy na zewnątrz;
2. Urządzenie antykolizyjne, urządzenie alarmowe dźwiękowe i świetlne;
■ System sterowania elektrycznego żurawia chwytakowego:
1. Kontrola uchwytu;
2. Sterowanie kabiną można dostosować do potrzeb użytkowników na średnim poziomie roboczym;
3. Kabina może być otwarta lub zamknięta, zainstalowana w lewo lub w prawo;
4. Wejście do kabiny: wejście boczne, wejście końcowe i wejście górne
Pakiet i dostawa

■ Standardowe opakowanie kontenerowe
■ Zgodnie z wymaganiami klienta
■ Czas dostawy wysłany w ciągu 25 dni po dokonaniu płatności
Popularne Tagi: Chwyć suwnicę łyżkową Chiny, producenci, dostawcy, dostosowane, oferta, oferta, cena
Wyślij zapytanie
Może ci się spodobać również











